180 Kinderkrippe am Stoppelfeld München 2019-2022
Auftraggeber Stadt München
Leistungen LPH 1-9
Status in Planung
Weitere Infos
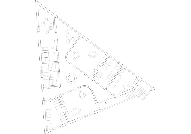
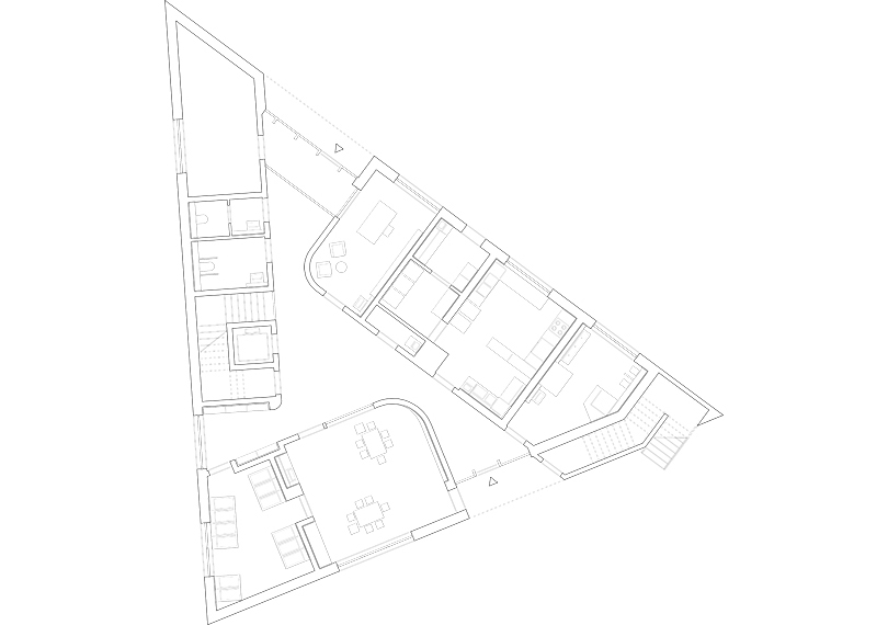
Das beplante Grundstück am Stoppelfeld im Münchner Westen liegt nördlich der stadtauswärtsführenden Würmtalstraße inmitten eines Wohngebietes. Sein dreieckiger Zuschnitt ist somit von zwei Seiten prominent am öffentlichen Straßenraum gelegen. Unmittelbar daneben und im näheren Umgriff schließen Mehrfamilienhäuser mit zwei Vollgeschossen und Dachgeschoss an. Formal erweist sich die Umgebung eher heterogen mit ihren klaren Hausformen, Sattel- oder Pyramidendächern und mannigfaltigen Dachaufbauten.
Die neue Kinderkrippe greift das Dreieck der Parzelle auf und kann städtebaulich wie funktional einen Sonderbaustein mit hohem Wiedererkennungswert abbilden. Identitätsstiftend positioniert sie sich zu allen drei Seiten und rückt dabei so weit wie möglich nach Norden in Richtung Straßengabelung, um einen größtmöglichen Südgarten ausbilden.