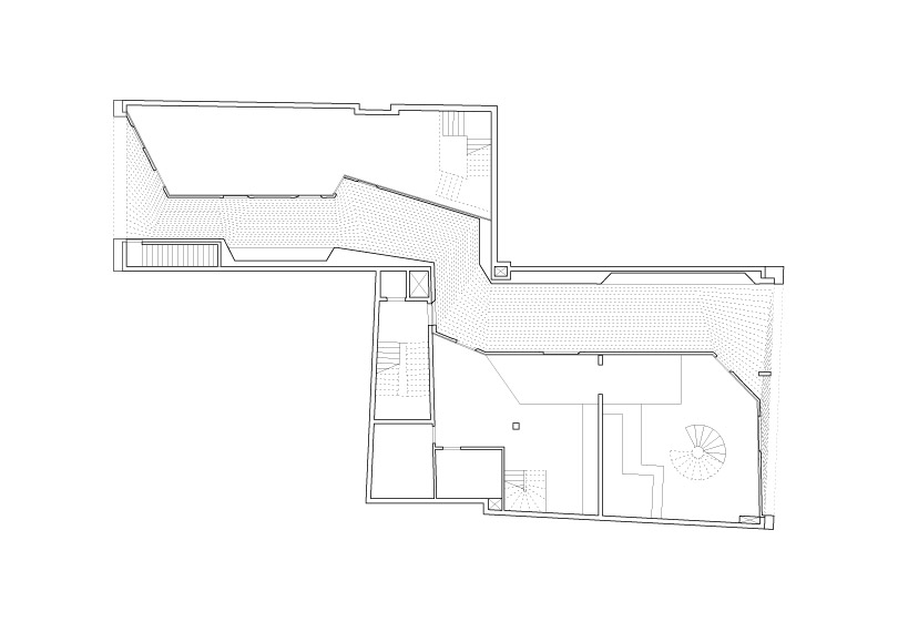
PassagePassagePassagePassagePassagePassagePassagePassage

066 Passage Ingolstadt, Wettbewerb 2008, 1. Preis Auftraggeber Hausverwaltung Messmann GmbH
Baukosten KG 300 und 400 220.000 Euro Leistungen 1-8 Status gebaut

Weitere Infos