183 Haus ROTH Ingolstadt 2019 - 2021
Auftraggeber privat
Nutzfläche 147 m2
Leistungen 1 - 8
Status in Bearbeitung
Weitere Infos
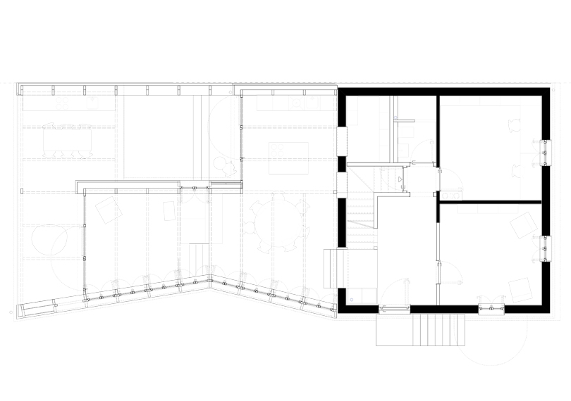
Ein Quartier, dessen Straßen von langgezogenen Arbeiterhäuschen gesäumt sind, verliert durch Abbruch und Neubau an Struktur und Gestalt. Die robuste Substanz des Doppelhauses aus dem Jahre 1926 und seine klare Raumaufteilung führten zu der Entscheidung, behutsam zu reparieren und den neuen Dachstuhl in einen Anbau übergehen zu lassen, der sich vom Hochparterre über mehrere Nivaus in den Garten abtreppt.
Bereits der Eingabeplan zeigt an dieser Stelle einen grenzständigen Anbau, in dem Waschküche und Stall untergebracht waren. Durchbrüche, Deckenausschnitte und Wandöffnungen bleiben sichtbar und illustrieren den reduzierten Eingriff , mehrere Schichten von Außen- und Innenbekleidung werden Bestandteil der Oberflächen, alte und neue Baukomponenten greifen ineinander.