021 Stadthäuser Griesbadgasse Ingolstadt, Wettbewerb 2005, 1. Preis, Ausführung 2007-2008
Auftraggeber GWG Ingolstadt GmbH
Nutzfläche 895 m²
Baukosten KG 300 und 400 1.555.000 Euro
Leistungen 1 bis 7, 8 (künstlerische Oberleitung)
Status gebaut
Weitere Infos
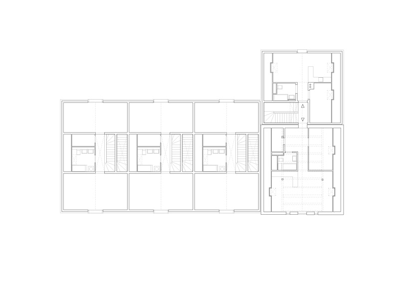
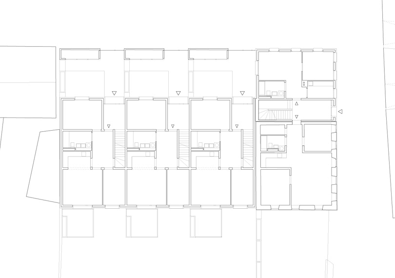
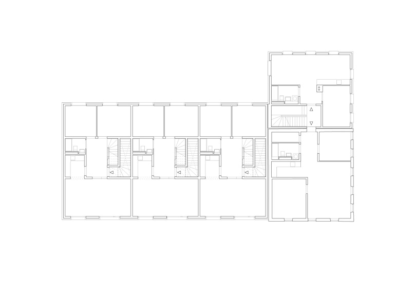
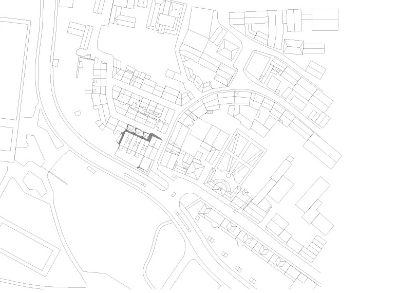
Das Projekt geht aus einem gewonnenen Wettbewerb hervor. Aufgabe war es, ein denkmalgeschütztes Haus aus dem Jahr 1856 zu sanieren und mit weiteren Wohnbauten zu ergänzen. Insgesamt sollten 12 Wohnungen entstehen. Das Grundstück befindet sich im Ensembleschutz der Ingolstädter Altstadt. Struktur und Formenkanon des Umgriffs sind Kontext und Vorbild der neuen Bebauung. An prominenter Stelle entlang der ehemaligen Stadtbefestigung entsteht ein dominantes wie integratives Ensemble von vier neuen Wohnhäusern, die den denkmalgeschützten Bestand einbinden. Die aneinander gereihten Giebelhäuser wirken identitätsstiftend, den Bewohnern soll das Gefühl vom „eigenen Haus“ vermittelt werden.
Das Motiv der an Stadthäusern vorgelagerten Höfen und Gärten ist der „Schleifmühle“ entlehnt, der ältesten erhaltenen Wohnzeile der Ingolstädter Altstadt, die sich in unmittelbarer Nähe befindet.Die Neubauten nehmen in Gestaltung und Materialität Bezug auf die Umgebung. Das denkmalgeschützte Haus wurde soweit als möglich in seiner Substanz erhalten. Putzfaschen gliedern seine Fassade, den der neue Anbau übernimmt. Die Fensterformate, heutigen Bedürfnissen angepasst, vermitteln zur Fassade der drei anschließenden Neubauten. Die EnEV wird um 30 % unterschritten. Erreicht wird dies u.a. durch eine kontrollierte Raumlüftung: in allen Schlaf- und Wohnräumen werden dezentrale Lüftungsgeräte in die Außenwand eingebaut.