130 Austragshaus Altmühltal Arnsberg 2016-2019
Auftraggeber privat
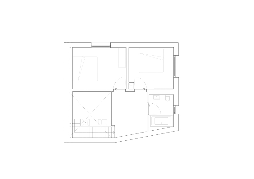
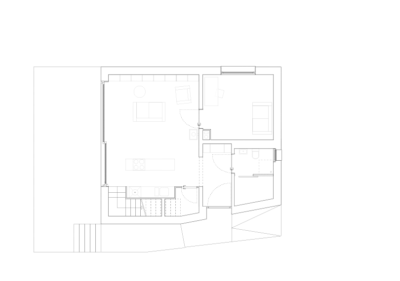
Nutzfläche 96 m2
Leistungen 1-5
Status im Bau
Weitere Infos
In die ehemalige Hofstätte am Fuße von Schloss Arnsberg fügt sich das kleine Austragshaus ein, indem es vorgefundene Bautypen und Materialien adaptiert, den Hof fasst und zur Dorfstraße hin abschließt. Dort liegt auch die eingerückte Haustür als einzige Fassadenöffnung nach Süden. Das asymmetrische Satteldach, dessen Flächen im First einen rechten Winkel bilden, schafft ausreichend Raum für Rückzugs- und Schlafräume auf zwei Ebenen. In Holzbauweise und mit hohem Vorfertigungsgrad konstruiert, konnte das Haus
auf einer Stahlbetonbodenplatte innerhalb weniger Tage aufgestellt und mit dem Innenausbau begonnen werden. Während der Sockel im Bereich von Haustür und Hofeinfahrt in robustem Backstein gehalten ist, werden die Fassaden mit sägerauer Lärchenbretterschalung verkleidet und geschossweise voneinander abgesetzt – analog zu den umstehenden Scheunen. Die Materialsichtigkeit setzt sich an Innenwänden, Dachuntersichten und dem Sichtestrich im Erdgeschoss fort.