



















110 Haus SPK Ingolstadt 2012-2015
Auftraggeber privat
Nutzfläche 172 m2
Leistungen 1-8
Status gebaut




















110 Haus SPK Ingolstadt 2012-2015
Auftraggeber privat
Nutzfläche 172 m2
Leistungen 1-8
Status gebaut
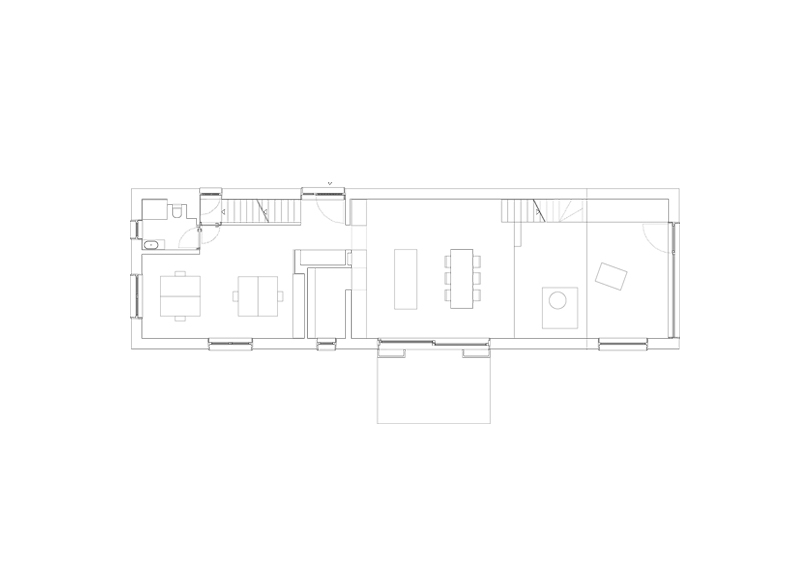
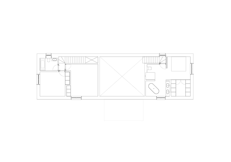
Extrem schmale und gleichzeitig sehr lange Grundstücke haben in diesem Stadtteil einen speziellen Haustypus hervorgebracht: direkt an der Straße platzierte traufständige Arbeiterhäuser mit geneigtem Dach und angehängtem Langhaus reichen tief in die Gärten hinein und gleichen nebeneinander abgestellten Bahnwaggons. Die vorgefundene Typologie diente uns als Vorbild, wurde weiterentwickelt und das Quartier in seiner Eigenart weitergebaut. Auf einer Grundfläche von 6 auf 22 Metern reihen sich Kinderhaus, Gemeinschaftshaus und Elternhaus aneinander und werden zu einem Volumen überformt.
Während das gesamte Erdgeschoss gemeinschaftlich genutzt und mit einer kleinen Büroeinheit belegt werden kann, sind sämtliche Privaträume in den beiden Obergeschossen untergebracht und teilweise mit kleinen Galerien im Dach versehen. Dreh- und Angelpunkt der familiären Zusammenlebens bleibt der langgestreckte und zum Garten hin durchgesteckte Wohn- und Essraum mit 60 Quadratmetern auf zwei Bodenniveaus und unterschiedlichen Raumhöhen. In Massivbauweise mit Dämmziegeln und Eichenholzfenstern errichtet, wird der KfW-70-Standard erreicht.