

















125 Villa STD Ingolstadt 2014
Auftraggeber privat
Leistungen 1-3
Status Wettbewerb
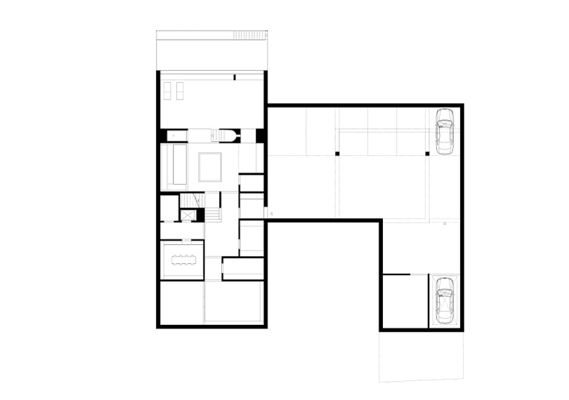
Zwischen Gerolfinger Straße und Schutter spannt sich ein Areal, das vornehmlich mit Wohnhäusern aufwartet. Es dominieren punktförmige ein- bis zweigeschossige Satteldachhäuser mit unterschiedlichen Neigungswinkeln. Viele Grundstücke werden von massiven Mauern umstanden, manche mit Holztoren versehen, viele begrünt und bewachsen. Der Grundgedanke ist, vier einzelne Häuser unter einem Dach zu vereinen. An jedes Haus werden eigene Anforderungen gestellt, jedes mit unterschiedlichen Nutzungen belegt und privaten wie halböffentlichen Zwecken zugeführt. Aus vier Häusern entsteht ein großes Haupt- und ein kleineres Gästehaus, die zusammen mit Garagen und Gartenmauer einen halböffentlichen Hof umstellen. Der Rest des Grundstücks bleibt ein großer Garten, der vor Blicken geschützt und allein der Familie vorbehalten ist. Die Nutzungseinheiten werden räumlich getrennt von Raumschichten unterschiedlicher Tiefe, die sämtliche Funktionsräume in sich aufnehmen, das gesamte Gebäude zonieren und konstruktiv strukturieren.
Wo erforderlich werden zwischen den Raumschichten überdachte Freibereiche eingeschnitten, die Größe und Proportion der dahinterliegenden Wohn- und Aufenthaltsbereiche festschreiben. Öffnungen in den Raumschichten definieren den Weg durch das Gebäude und sorgen für abwechslungsreiche Raumeindrücke. Das vorgestellte Materialkonzept leitet sich aus dem Entwurf ab und versucht diesem in seiner Schlichtheit und Selbstverständlichkeit zu entsprechen. Hochwertige Wärmedämmziegel (alternativ Dämmbeton) werden außen mit eingefärbtem Strukturputz, innen mit leicht changierendem Glattputz versehen. Dieses mineralische Grundgerüst kann mit einem Material ausgekleidet werden, das ähnlich würdevoll altert wie die Wandoberflächen: Holz.Die Gestaltung der Freiflächen arbeitet mit dauerhaft schönen und zeitlosen Materialien: Pflastersteine, in verschiedenen Mustern und Techniken verlegt, gliedern die einzelnen Bereiche rund um den Hof. Eine neu errichtete und leicht erhöhte Gartenmauer bildet den Abschluss des Anwesens.