







076 Nordbahnhof Ingolstadt Ingolstadt, Wettbewerb 2009, 2. Preis
Auftraggeber IFG Ingolstadt








076 Nordbahnhof Ingolstadt Ingolstadt, Wettbewerb 2009, 2. Preis
Auftraggeber IFG Ingolstadt
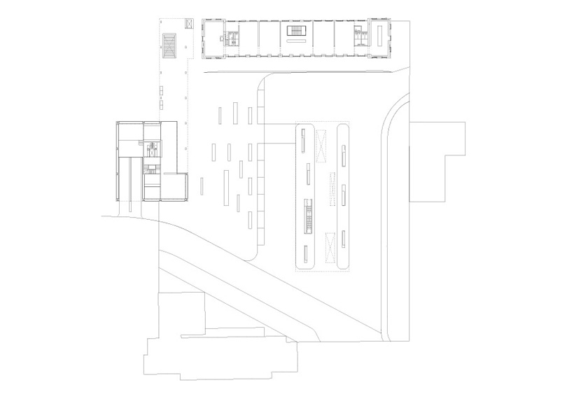
Städtebaulicher Entwurf eines Bahnhofplatzes mit Erhalt des Nordbahnhofes, neuem Busbahnhof, Bürogebäude und Tiefgarage. Das Potential des brachliegenden Nordbahnhofes liegt zum einen in seiner Nähe zur Altstadt, der schnellen Verbindung zu Autobahn und Audi-Werksgelände, zum anderen Vorhaben, das Areal zur Verkehrsdrehscheibe für Pendler zu machen. Dringlichste Aufgabe hierbei war die Fassung des Platzes und die Aufwertung des alten Gebäudes zum atmosphärischen Mittelpunkt des Ensembles.
Ein geplanter Bürobau und bestehende Wohn- und Geschäftshäuser schließen das Areal ab, es entsteht eine städtische Freifläche mit Geschäften und Cafes im alten Nordbahnhof und dem Bürogebäude der INVG / KVB mit Wartehalle im Erdgeschoß und Zugang zu den Gleisen. Der gesamte Platz wird von einer zweigeschossigen Tiefgarage mit 304 Stellplätzen unterbaut, um diese gewaltigen Baumasse nicht in Konkurrenz zum Nordbahnhof treten zu lassen.